1/2
Dům 99
Dům 99
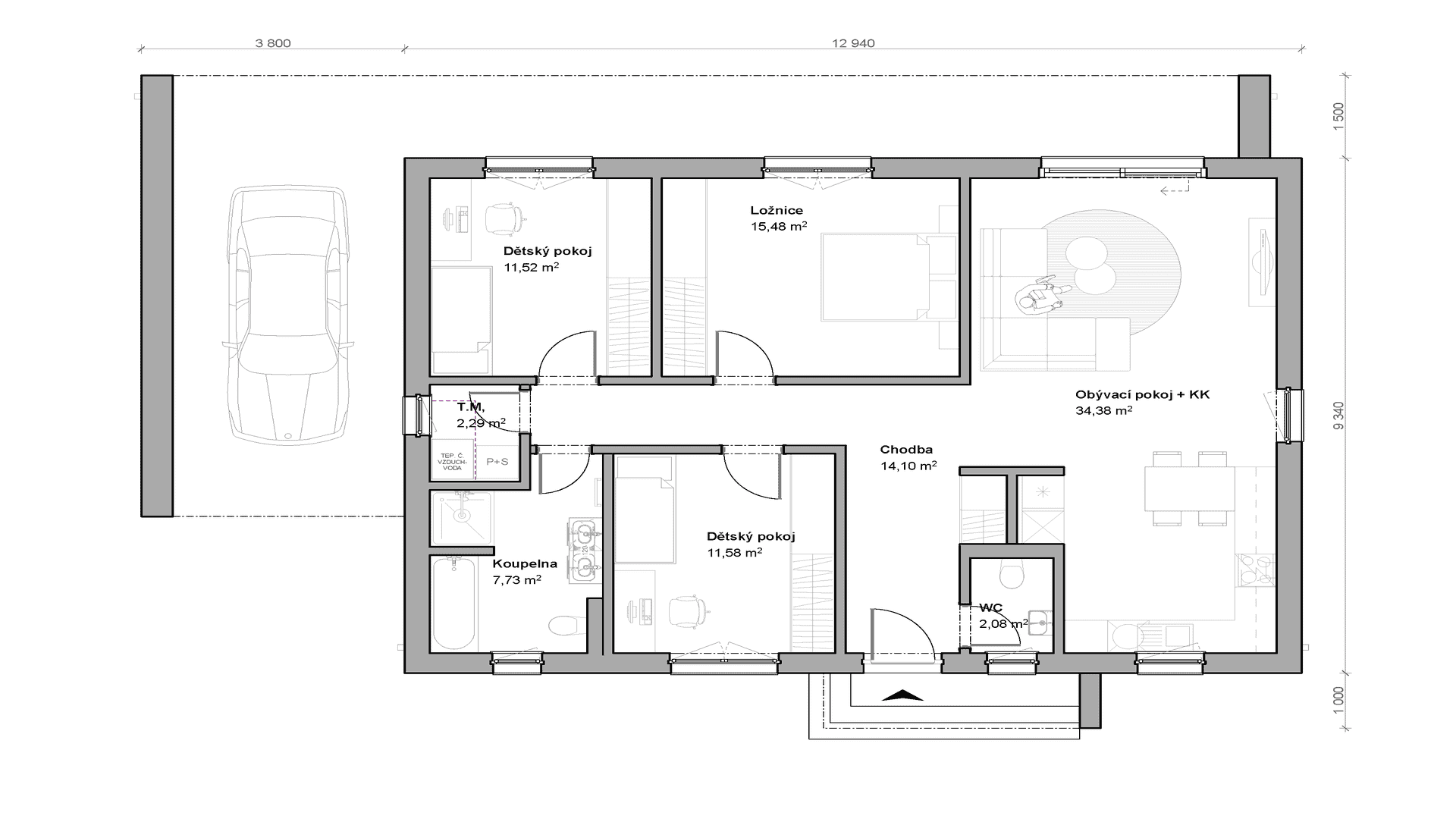
Dům 99 je moderní přízemní bungalov, který na 99 m² nabízí promyšlené a praktické bydlení. Součástí domu je přístřešek pro automobil a prostorná terasa, která rozšiřuje obytný prostor a vytváří příjemné místo pro relaxaci. Díky efektivnímu dispozičnímu řešení poskytuje dům pohodlí i dostatek soukromí, zatímco moderní styl dodává interiéru i exteriéru nadčasový vzhled.

- Tepelné čerpadlo v ceně domu
- Konstrukce krovu a hranolů stěn z lepeného dřeva
- Dvojité opláštění stěn
- Nadstandardní výbava v základní ceně
Dispozice4+kk
Zastavěná plocha120m²
Podlahová plocha99m²
Počet pater1



Zalíbil se Vám tento dům?
Pomůžeme se vším, od projektu až po předání
Kontaktujte nás
Máte projekt, studii nebo jen představu o domově?
Napište nám, rádi se s vámi spojíme.
