1/3
Dům 230
Dům 230
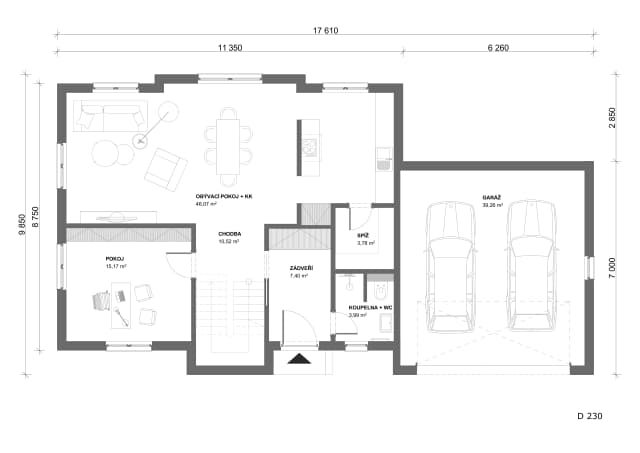
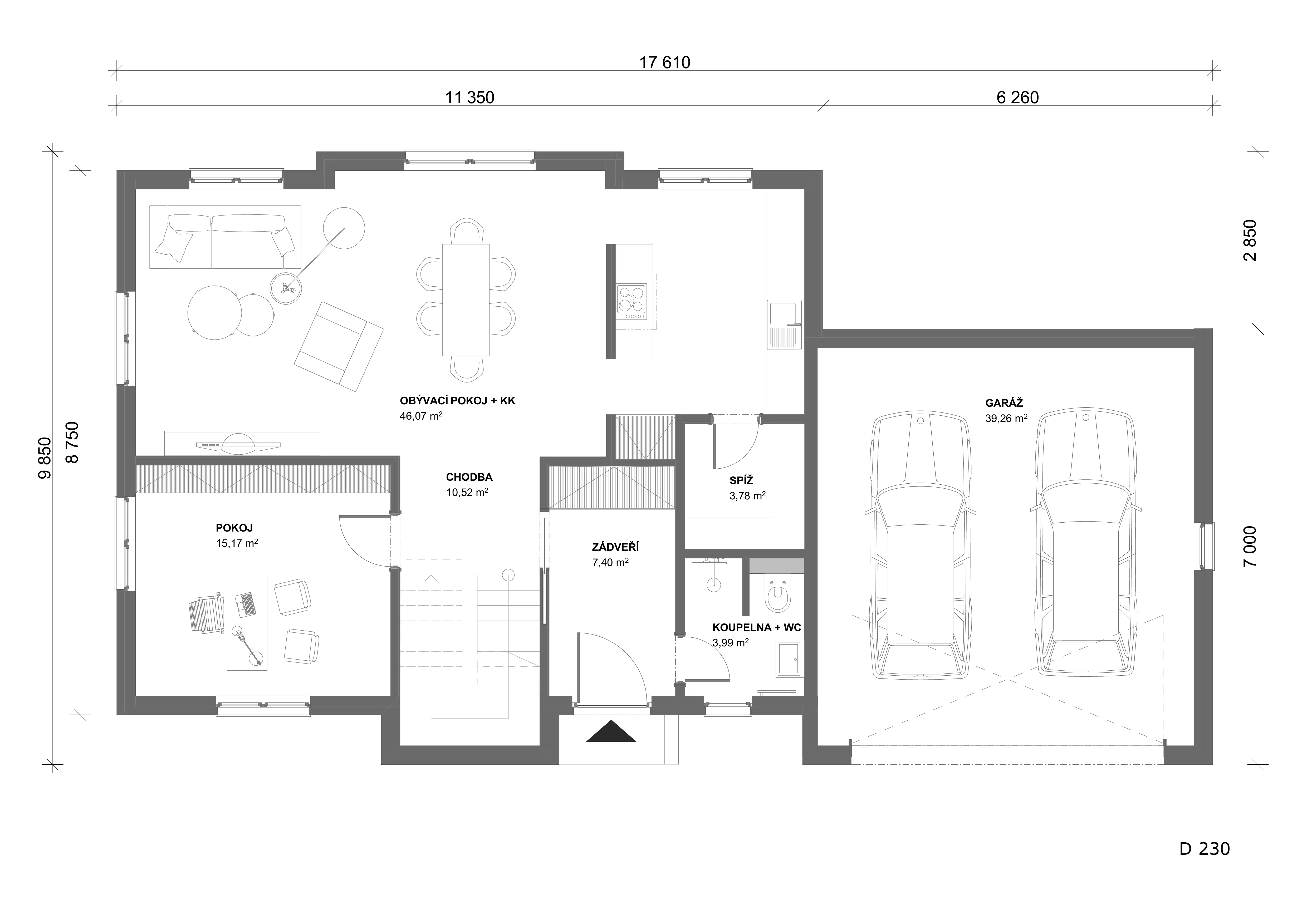
Dům 230 zaujme prostorností a příjemnou atmosférou. Interiér začíná velkým zádveřím, odkud se vstupuje do útulné koupelny pro hosty a obývacího pokoje, ze kterého vede schodiště do podkroví. Obývací část je propojena s jídelnou a nabízí přístup do pracovny či pokoje pro hosty. Kuchyň je oddělena plnou příčkou s volným průchodem bez dveří a navazuje na prostornou spíž. V podkroví se nachází ložnice, dva dětské pokoje a velká rodinná koupelna, ze které se vstupuje do technické místnosti spojené s šatnou.

- Tepelné čerpadlo v ceně domu
- Konstrukce krovu a hranolů stěn z lepeného dřeva
- Dvojité opláštění stěn
- Nadstandardní výbava v základní ceně
Dispozice5+kk
Zastavěná plocha147.1m²
Podlahová plocha229.6m²
Počet pater2








+1 dalšíchZalíbil se Vám tento dům?
Pomůžeme se vším, od projektu až po předání
Kontaktujte nás
Máte projekt, studii nebo jen představu o domově?
Napište nám, rádi se s vámi spojíme.
