1/2
Dům 135
Dům 135
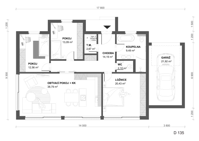
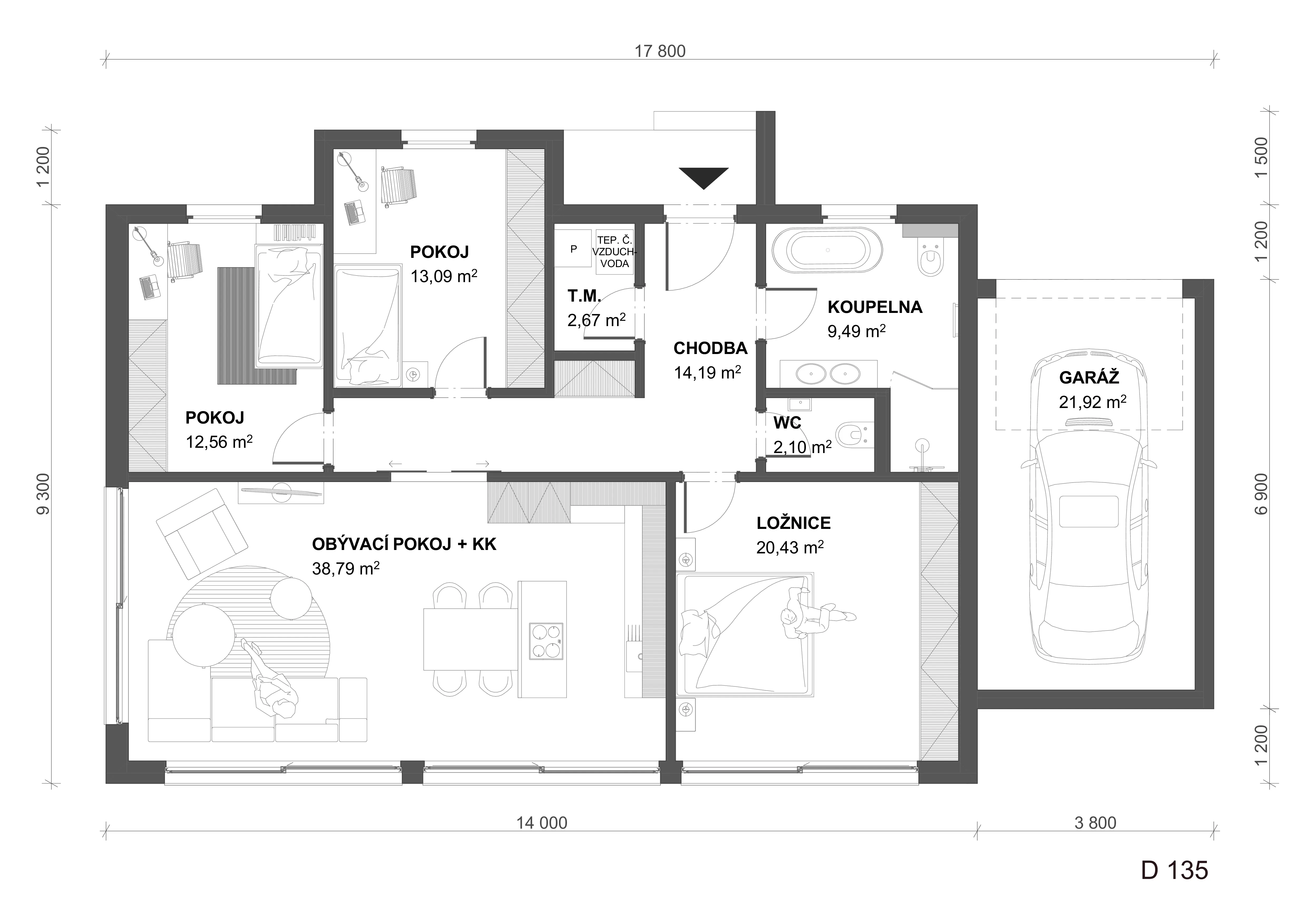
Dům 135 je moderní a velmi prostorný bungalov. Z čelního pohledu je rozdělen do tří postupně ustupujících celků, což vizuálně narušuje monotónnost dlouhého kvádru a dodává stavbě dynamiku. Zajímavě řešené zastřešení vstupních dveří vytváří působivý vstupní portál. Směrem do zahrady se dům otevírá velkými prosklenými plochami, které majitelům umožňují maximální propojení s okolní přírodou. Všechny místnosti jsou přístupné z centrální chodby. Dům nabízí tři samostatné pokoje a velkorysý obývací prostor s kuchyňským koutem.

- Tepelné čerpadlo v ceně domu
- Konstrukce krovu a hranolů stěn z lepeného dřeva
- Dvojité opláštění stěn
- Nadstandardní výbava v základní ceně
Dispozice4+kk
Zastavěná plocha161m²
Podlahová plocha135m²
Počet pater1



Zalíbil se Vám tento dům?
Pomůžeme se vším, od projektu až po předání
Kontaktujte nás
Máte projekt, studii nebo jen představu o domově?
Napište nám, rádi se s vámi spojíme.
