1/2
Dům 116
Dům 116
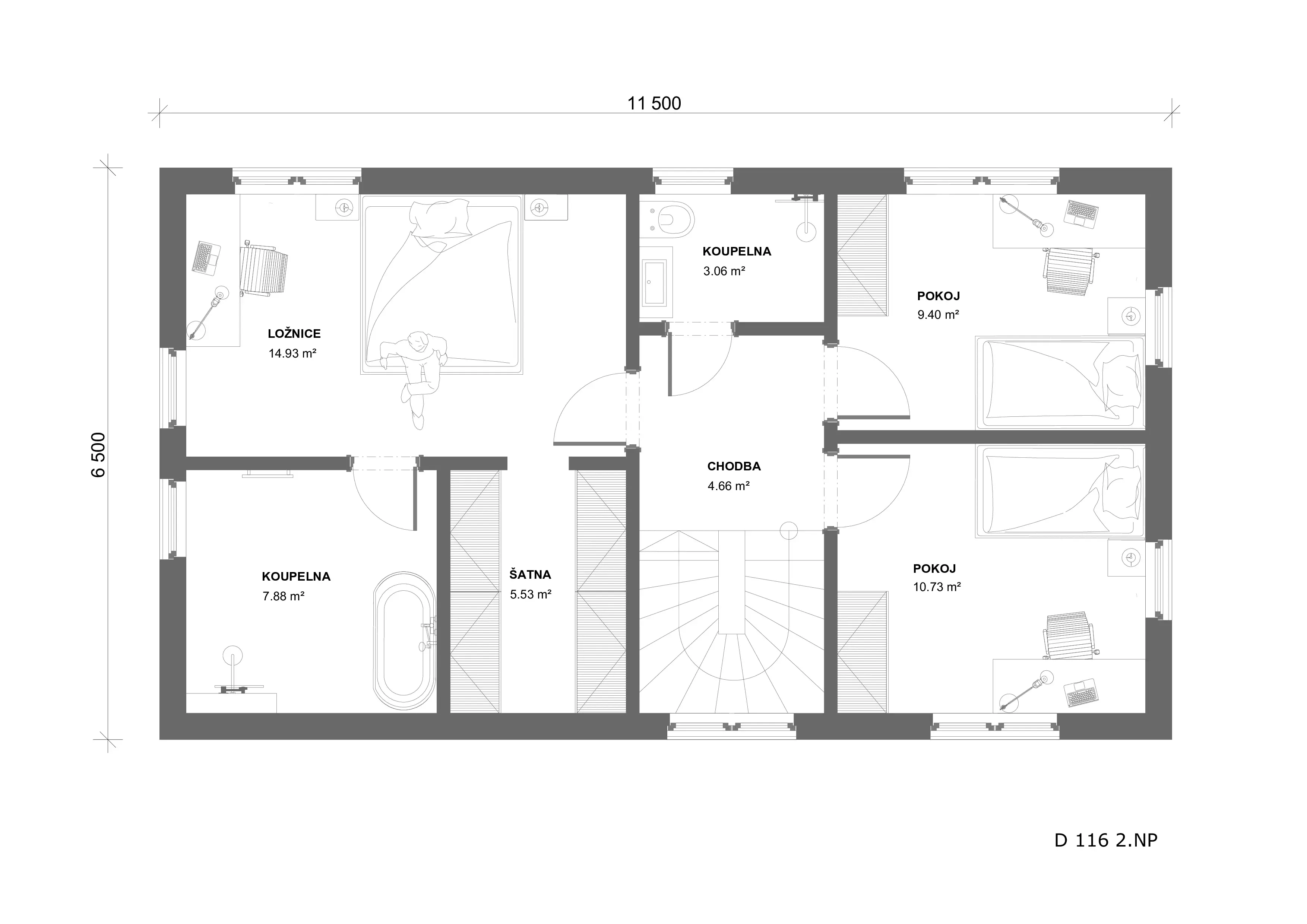
Dům 116 je patrová stavba, která propojuje dvě hmoty kvádru v jeden celek. Obytná část domu plynule navazuje na garáž s doplňkovým úložným prostorem. Spojení pak vytváří kryté zákoutí pro hlavní vchod. V přízemí se nachází prostorná vstupní chodba se schodištěm, samostatná kuchyň propojená s jídelní a obývací částí a pokoj, který lze využít jako pracovnu či hostinský pokoj. Druhé nadzemní podlaží nabízí tři pokoje, dvě koupelny, samostatnou šatnu a ložnici s vlastní koupelnou a šatnou. Promyšlené dispoziční řešení zajišťuje prostorné bydlení pro rodinu i více generací.

- Tepelné čerpadlo v ceně domu
- Konstrukce krovu a hranolů stěn z lepeného dřeva
- Dvojité opláštění stěn
- Nadstandardní výbava v základní ceně
Dispozice5+kk
Zastavěná plocha111m²
Podlahová plocha116m²
Počet pater2




Zalíbil se Vám tento dům?
Pomůžeme se vším, od projektu až po předání
Kontaktujte nás
Máte projekt, studii nebo jen představu o domově?
Napište nám, rádi se s vámi spojíme.
