1/2
Dům 103
Dům 103
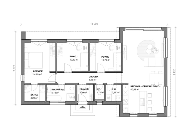
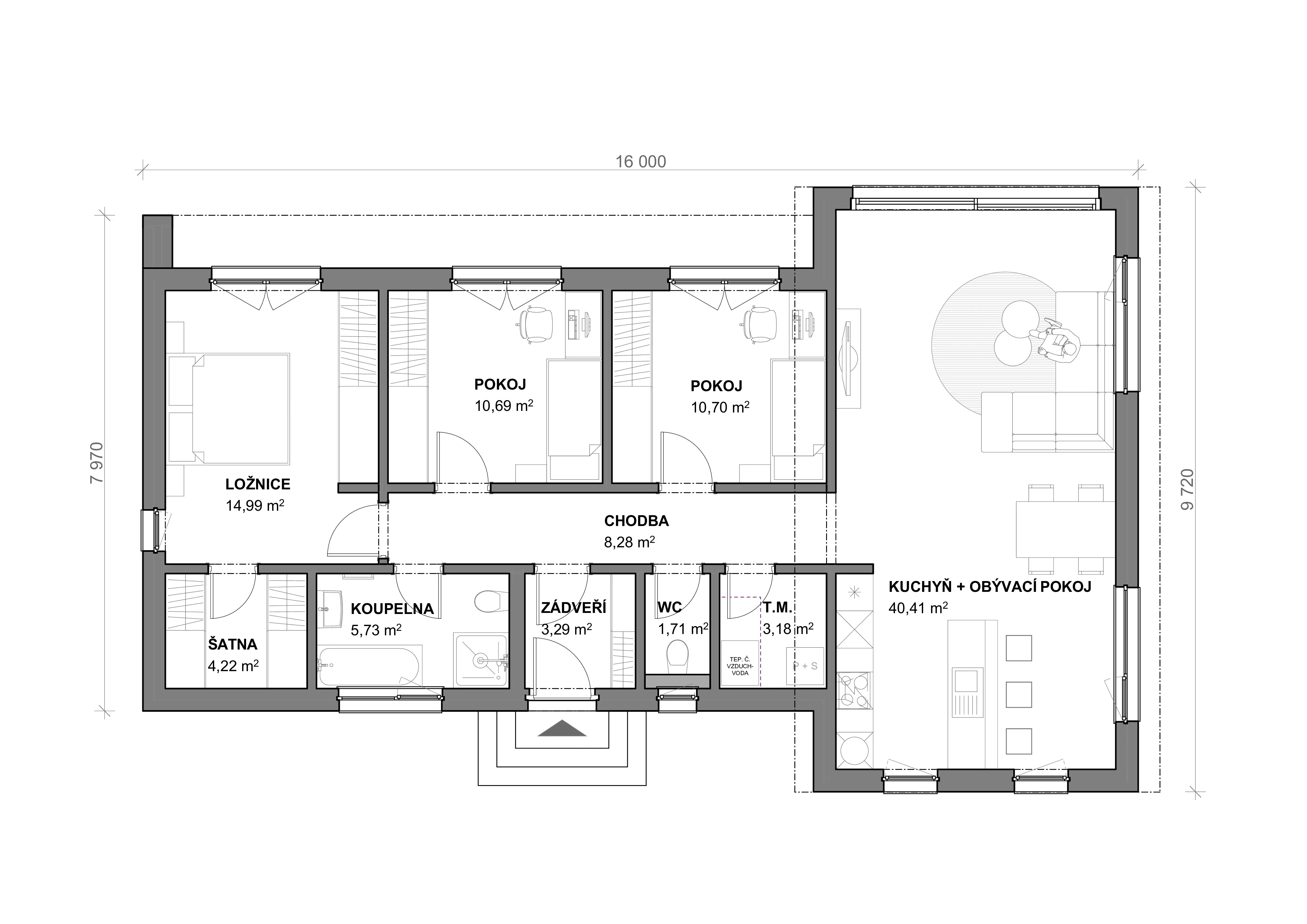
Dům 103 je moderní přízemní bungalov, který na 103 m² nabízí promyšlené a funkční bydlení. Jeho největší předností je praktické dispoziční řešení, které maximálně využívá každý metr prostoru. Zároveň zaujme nevšedním vzhledem, který dodává domu osobitý charakter. Spojení moderního stylu a efektivního uspořádání vytváří ideální domov pro pohodlný a harmonický život.

- Tepelné čerpadlo v ceně domu
- Konstrukce krovu a hranolů stěn z lepeného dřeva
- Dvojité opláštění stěn
- Nadstandardní výbava v základní ceně
Dispozice4+kk
Zastavěná plocha127m²
Podlahová plocha103m²
Počet pater1



Zalíbil se Vám tento dům?
Pomůžeme se vším, od projektu až po předání
Kontaktujte nás
Máte projekt, studii nebo jen představu o domově?
Napište nám, rádi se s vámi spojíme.
