1/2
Dům 88
Dům 88
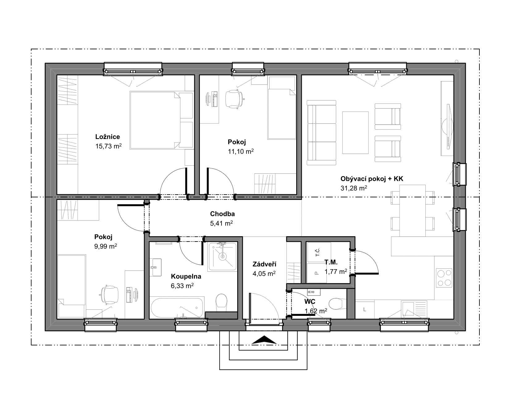
Dům 88 je přízemní rodinný dům pro čtyřčlennou rodinu. Už při vstupu vás přivítá prostorná chodba s vestavěnou šatní skříní, která přirozeně rozděluje dům na klidovou a společenskou část. Levá část domu nabízí tři samostatné pokoje, zatímco vpravo se otevírá jídelna s krásným průhledem do zahrady. Obývací pokoj s kuchyňským koutem o rozloze 32 m² poskytuje dostatek prostoru pro rodinný život bez omezení.

- Tepelné čerpadlo v ceně domu
- Konstrukce krovu a hranolů stěn z lepeného dřeva
- Dvojité opláštění stěn
- Nadstandardní výbava v základní ceně
Dispozice4+kk
Zastavěná plocha104.73m²
Podlahová plocha88.11m²
Počet pater1



Zalíbil se Vám tento dům?
Pomůžeme se vším, od projektu až po předání
Kontaktujte nás
Máte projekt, studii nebo jen představu o domově?
Napište nám, rádi se s vámi spojíme.
