Vzorový dům ALLSTAV 1
1/1

Dům 148SV

Dům 148SV

Dům 148SV poskytuje komfort až pro šestičlennou rodinu. Na zastavěné ploše 95 m² nabízí promyšlenou dispozici 6+kk, kde každý člen domácnosti najde svůj vlastní prostor, aniž by se ztratil pocit společného domova. Moderní řešení využívá každý centimetr. Nabízí dostatek soukromí i velkorysý prostor pro společné chvíle. Praktické uspořádání a vzdušnost interiéru dělají z tohoto domu ideální místo pro pohodový rodinný život.

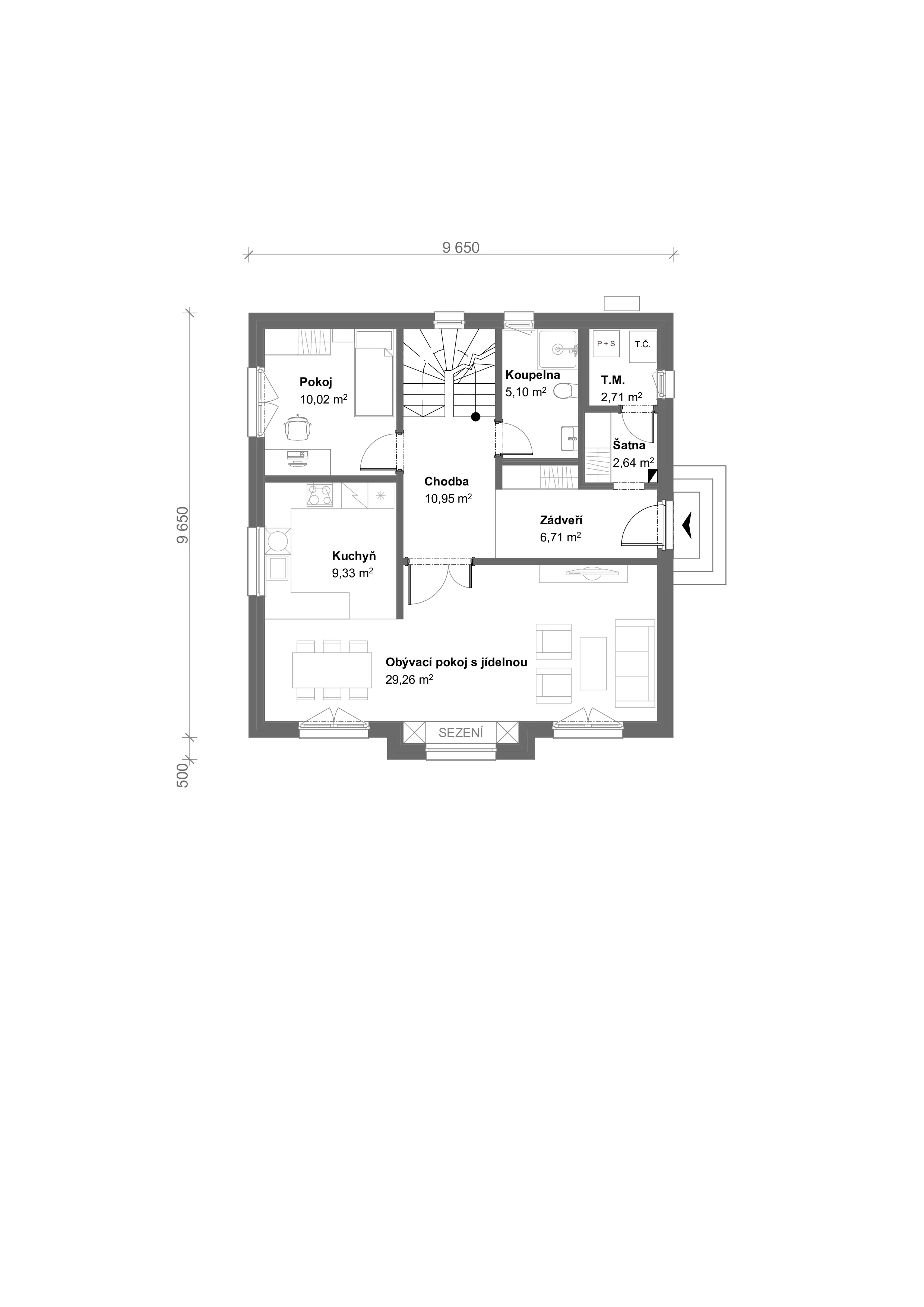
Půdorys domu
  • Tepelné čerpadlo v ceně domu
  • Konstrukce krovu a hranolů stěn z lepeného dřeva
  • Dvojité opláštění stěn
  • Nadstandardní výbava v základní ceně
Dispozice6+kk
Zastavěná plocha95m²
Podlahová plocha147.8m²
Počet pater2
Dům 1
Dům 2
Dům 3
Zalíbil se Vám tento dům?

Pomůžeme se vším, od projektu až po předání

Kontaktujte nás

Máte projekt, studii nebo jen představu o domově?
Napište nám, rádi se s vámi spojíme.

Allstav logo

Sledujte ALLSTAV na Facebooku a Instagramu